- 3
- 2
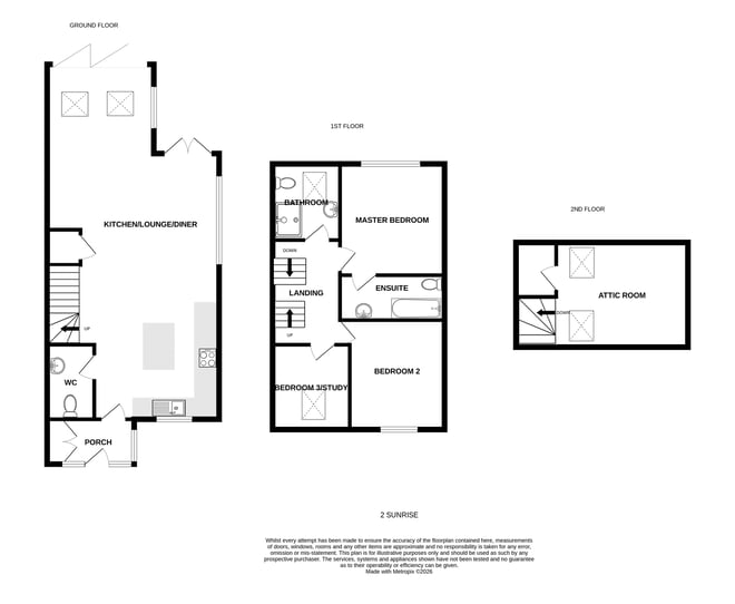
This semi-detached three bedroom property is situated in a quiet Clos just a few minutes walk away from the West Coast and the neighbouring amenities. This family home has been finished to a high specification throughout offering spacious open plan living. Accommodation comprises large entrance porch, open plan living/kitchen/dining room, cloakroom, two bedrooms (with en-suite to master), family bathroom, bedroom three/office and large attic room. To the rear of the property is a garden with a patio area ideal for alfresco dining. The property also benefits from parking for two cars. Regret not suitable for pets, smokers or sharers. Available mid-March.
Furnishing
Unfurnished
Entrance Hall
8' x 4' (2.44m x 1.23m)
Kitchen/Lounge/Diner
39' 2" x 15' 7" (11.94m x 4.75m)
WC
8' x 5' (2.43m x 1.52m)
Landing
12' 2" x 7' 2" (3.71m x 2.18m)
Family Bathroom
7' 5" x 7' 1" (2.27m x 2.17m)
Master Bedroom
11' 1" x 11' (3.37m x 3.35m)
Ensuite
10' 11" x 4' 10" (3.34m x 1.47m)
Bedroom 2
11' 5" x 8' 6" (3.48m x 2.58m)
Bedroom 3/Office
9' 10" x 7' 11" (3.00m x 2.41m)
Attic Room
13' 2" x 11' 9" (4.01m x 3.58m)
Items Staying With Property
Carpets, blinds as fitted and light fittings
Appliances Staying In Property
Neff washing machine
AEG tumble dryer
Neff fridge/freezer
Neff oven
Neff microwave
Neff hob
Neff extractor fan
Siemens dishwasher
School Catchment
La Mare de Carteret Primary School and St Sampson High School
Features
New build
Quiet clos
High specification
Near West Coast
Garden
To the rear of the property is a low maintenance garden with a patio area ideal for al fresco dining.
Parking
There is parking for two cars.






















